logo
Post Property Free

Skyline skyline

verify-iconRera

BySkyline Developers Ahmedabad

map-pinSola, Ahmedabad

₹1.15 Cr - ₹1.7 Cr ₹3.85 K /sq.ft

Last updated: November 01, 2025

call-iconContact Builder
Cover Image
Skyline skyline
Skyline skyline
+ 4 More

Configurations

3, 4 Bhk Appartment

Possession Starts

June, 2023

Avg. Price

₹3.85 K /sq.ft

Sizes (Super Buildup Area)

1935 - 4419 sq.ft

Overview

Project Size

1 Buildings - 13 Floor

Launch Date

November, 2018

Flat area

1935.00 - 4419.00 sq.ft

Rera Id

PR/GJ/AHMEDABAD/XXX PR/GJ/AHMEDABAD/AHMEDABAD CITY/AUDA/MAA03850/261018

More About Projects

Skyline by Skyline Developers is a high-quality residential project located in the Sola area of Ahmedabad. Spread over 1.35 acres, The residential project is registered under the rera number PR/GJ/AHMEDABAD/AHMEDABAD CITY/AUDA/MAA03850/261018. it has a started date of nomber 218, ans is sceduled for completiob by jun 2023. the project offers spacious, thoughtfully designed apartments with luxurious interiors and modern amenities, ensuring a comfortable and convenient lifestyle. Key features include car parking, lifts, landscaped gardens, 24/7 security, and continuous water and electricity supply. The project is under construction, with possession expected on 30/06/2023. Its strategic location provides easy access to Ahmedabad Central Railway Station (approximately 13.4 km) and Sardar Vallabhbhai Patel International Airport (approximately 16.9 km). The area is well-connected via major roads and public transport and is close to schools, banks, shops, and other essential services. if you need futher details about the project or have any specific queries feel free to ask!
Show More About Project faq-arrow.svg

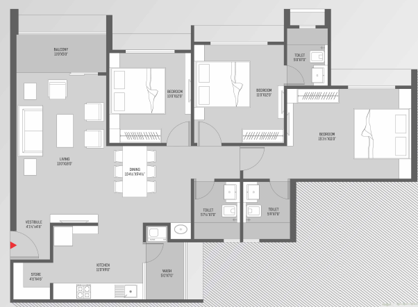
Floor Plan & Pricing

₹1.15 Cr info-icon
Skyline skyline

Explore 3D Interactive Floor Plan

₹1.23 Cr info-icon
Skyline skyline

Explore 3D Interactive Floor Plan

₹1.32 Cr info-icon
Skyline skyline

Explore 3D Interactive Floor Plan

₹1.7 Cr info-icon
Skyline skyline

Explore 3D Interactive Floor Plan

Project Amenities

24X7 Water Supply 24X7 Water Supply
Fire Fighting System Fire Fighting System
Visitor Parking Visitor Parking
Reserved Parking Reserved Parking
Children Playing Zone Children Playing Zone
Senior Citizen Sitting Area Senior Citizen Sitting Area
Cctv Surveillance Cctv Surveillance
24/7 Security 24/7 Security
ClubHouse ClubHouse

Project Brochure

Explore Neighbourhood - Map View

Send enquiry to Builder

Please share your contact detail.

I am :
Reason to buy :
Send

EMI Calculator

Loan Amount
₹ 1 Lac ₹ 10 Cr
Tenure (Years)
1 Year 30 Year
Interest Rate (% P.A.)
0.5% 15%
Calculate
Result
Monthly Installments (EMI) ₹ 0
Principal Amount ₹ 0
Total Interest ₹ 0
Total Interest Payment ₹ 0
Skyline Developers Ahmedabad
Skyline Developers Ahmedabad
25 Years Experience
Total Projects 1
Projects Completed 1
Projects Ongoing 0
      
        

Sola Ratings

      
    
           
3.9/5
Average Rating
(17 Total Reviews)
Likes
Dislikes
      
        

Review By Resident