logo
Post Property Free

Shree Keshvam Heights

verify-iconRera

ByShree Ganesh Developers

map-pinTragad, Ahmedabad

₹61 L - ₹73 L ₹3.72 K /sq.ft

Last updated: March 28, 2025

call-iconContact Builder
Cover Image
Shree Keshvam Heights
Shree Keshvam Heights

Configurations

3 Bhk Appartment

Possession Starts

March, 2025

Avg. Price

₹3.72 K /sq.ft

Sizes (Super Buildup Area)

1638 - 1701 sq.ft

Overview

Project Size

1 Buildings - 13 Floor

Launch Date

July, 2020

Flat area

1638.00 - 1701.00 sq.ft

Rera Id

PR/GJ/AHMEDABAD/XXX PR/GJ/AHMEDABAD/AHMEDABAD CITY/AUDA/MAA07398/A1M/090323

More About Projects

For those looking to buy a residential property, here comes one of the choicest offerings in Ahmedabad North, at Tragad. Brought to you by Shree Ganesh Developers Ahmedabad, Shree Keshvam Heights is among the newest addresses for homebuyers. This is a new launch project right now, and is expected to be delivered by Mar, 2025. It has a variety of options to choose from that too in a varied budget range.
Show More About Project faq-arrow.svg

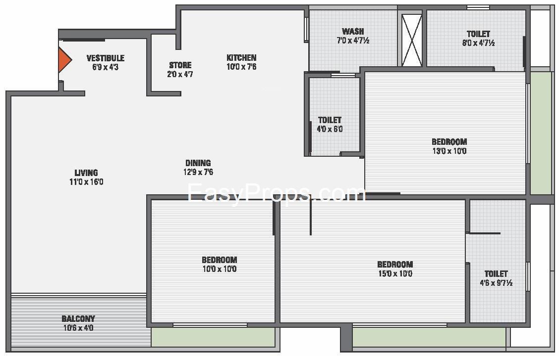
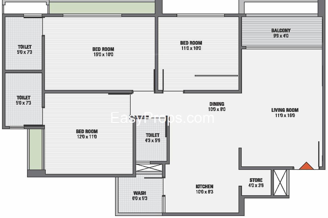
Floor Plan & Pricing

₹61 L info-icon
Shree Keshvam Heights

Explore 3D Interactive Floor Plan

₹73 L info-icon
Shree Keshvam Heights

Explore 3D Interactive Floor Plan

Project Amenities

Indoor Games Indoor Games
Gymnasium Gymnasium
Car Parking Car Parking
24X7 Water Supply 24X7 Water Supply
24x7 CCTV Surveillance 24x7 CCTV Surveillance
Party Hall Party Hall
Cycling & Jogging Track Cycling & Jogging Track
24x7 Security 24x7 Security
Vastu Compliant Vastu Compliant
Fire Retardant Structure Fire Retardant Structure

Project Specifications

Floor & Counter

Living/Dining

High Quality Vitrified Tiles

Master Bedroom

High Quality Vitrified Tiles

Other Bedroom

High Quality Vitrified Tiles

Kitchen

High Quality Vitrified Tiles

Fitting

Kitchen Area

Granite platform with stainless steel sink

Toilets

CP fittings

Door

Flush Door

Wall & Ceiling

Interior

Putty Finish

Exterior

Textured Paint

Kitchen Space

Ceramic Tiles

Project Brochure

Explore Neighbourhood - Map View

Send enquiry to Builder

Please share your contact detail.

I am :
Reason to buy :
Send

EMI Calculator

Loan Amount
₹ 1 Lac ₹ 10 Cr
Tenure (Years)
1 Year 30 Year
Interest Rate (% P.A.)
0.5% 15%
Calculate
Result
Monthly Installments (EMI) ₹ 0
Principal Amount ₹ 0
Total Interest ₹ 0
Total Interest Payment ₹ 0
Shree Ganesh Developers
Shree Ganesh Developers
25 Years Experience
Total Projects 2
Projects Completed 2
Projects Ongoing 0
      
        

Tragad Ratings

      
    
           
3.9/5
Average Rating
(17 Total Reviews)
Likes
Dislikes
      
        

Review By Resident