logo
Post Property Free

Shree Hari Green

verify-iconRera

ByShree Hari Developer Ahmedabad

map-pinNarol, Ahmedabad

₹24.99 L - ₹29.48 L ₹2.62 K /sq.ft

Last updated: March 28, 2025

call-iconContact Builder
Cover Image
Shree Hari Green
Shree Hari Green
+ 3 More

Configurations

2 Bhk Appartment

Possession Starts

June, 2024

Avg. Price

₹2.62 K /sq.ft

Sizes (Super Buildup Area)

954 - 1125 sq.ft

Overview

Project Size

3 Buildings - 7 Floor

Launch Date

May, 2019

Flat area

954.00 - 1125.00 sq.ft

Rera Id

PR/GJ/AHMEDABAD/XXX PR/GJ/AHMEDABAD/AHMEDABAD CITY/AUDA/RAA06071/210919

More About Projects

Construction firm Shree Hari Developers Vatva has launched its premium residential project Green, it is located in Lambha, Ahmedabad. The project will be built on an area of 1.27 acres and offers comfortable and spacious 2 Bhk apartments exclusively. Carpet area of 2 Bhk apartments is in the rage of 494 to 608 sq ft. CCTV cameras are installed in the complex for the safety and security of residents and other amenities are also available in the premises. Lambha is comfortable area in Ahmedabad, several schools, educational institutes, and hospitals are established here. Restaurants, banks, and other utility Shops are located in the vicinity. Its neighboring areas include Aslali, Ambavadi, Amraiwadi, Ghodsar, Hathijan, Isanpur, Juhapura, Maninagar, Narolgam, and Paldi. Shree Hari Developers Vatva can be contacted for purchase of an apartment. Green will be ready in December 2023 for possession.
Show More About Project faq-arrow.svg

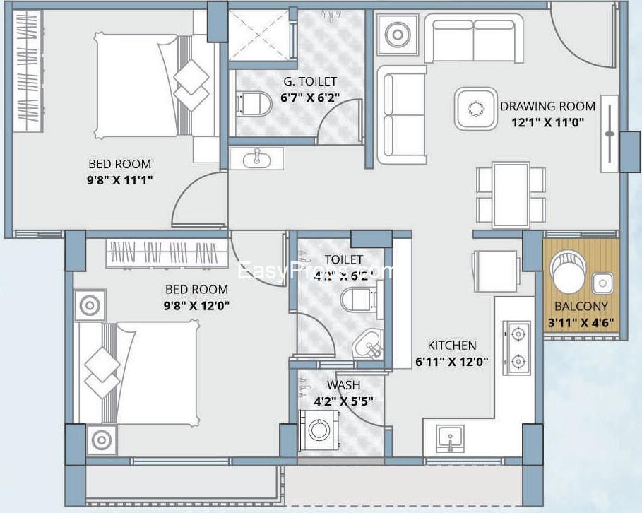
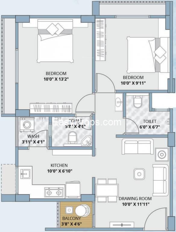
Floor Plan & Pricing

₹24.99 L info-icon
Shree Hari Green

Explore 3D Interactive Floor Plan

₹25.94 L info-icon
Shree Hari Green

Explore 3D Interactive Floor Plan

₹27.59 L info-icon
Shree Hari Green

Explore 3D Interactive Floor Plan

₹28.06 L info-icon
Shree Hari Green

Explore 3D Interactive Floor Plan

₹29.48 L info-icon
Shree Hari Green

Explore 3D Interactive Floor Plan

Project Amenities

Indoor Games Indoor Games
24X7 Water Supply 24X7 Water Supply
24 X 7 Security 24 X 7 Security
Fire Fighting System Fire Fighting System
Piped Gas Connection Piped Gas Connection

Project Specifications

Floor & Counter

Living/Dining

High Quality Vitrified Tiles

Master Bedroom

High Quality Vitrified Tiles

Other Bedroom

High Quality Vitrified Tiles

Kitchen

High Quality Vitrified Tiles

Fitting

Kitchen Area

Granite platform with stainless steel sink

Toilets

CP fittings

Door

Flush Door

Wall & Ceiling

Interior

Putty Finish

Exterior

Textured Paint

Kitchen Space

Ceramic Tiles

Project Brochure

Explore Neighbourhood - Map View

Send enquiry to Builder

Please share your contact detail.

I am :
Reason to buy :
Send

EMI Calculator

Loan Amount
₹ 1 Lac ₹ 10 Cr
Tenure (Years)
1 Year 30 Year
Interest Rate (% P.A.)
0.5% 15%
Calculate
Result
Monthly Installments (EMI) ₹ 0
Principal Amount ₹ 0
Total Interest ₹ 0
Total Interest Payment ₹ 0
Shree Hari Developer Ahmedabad
Shree Hari Developer Ahmedabad
25 Years Experience
Total Projects 4
Projects Completed 4
Projects Ongoing 0
      
        

Narol Ratings

      
    
           
3.9/5
Average Rating
(17 Total Reviews)
Likes
Dislikes
      
        

Review By Resident