logo
Post Property Free

Shivam Pushpak-2

verify-iconRera

ByShivam Buildcon Ahmedabad

map-pinOdhav, Ahmedabad

Price on Request

Last updated: October 09, 2025

call-iconContact Builder
Cover Image
Shivam Pushpak-2
Shivam Pushpak-2
+ 6 More

Configurations

1, 2 Bhk Appartment

Possession Starts

December, 2027

Avg. Price

Price on Request

Sizes (Super Buildup Area)

657 - 1098 sq.ft

Overview

Project Size

2 Buildings - 10 Floor

Launch Date

September, 2022

Flat area

657.00 - 1098.00 sq.ft

Rera Id

PR/GJ/AHMEDABAD/XXX PR/GJ/AHMEDABAD/AHMEDABAD CITY/Ahmedabad Municipal Corporatio MN282AA10182/261222

More About Projects

Shivam Pushpak 2 is a residential project by Shivam Buildcon located in Odhav, Ahmedabad. The development offers 1 BHK and 2 BHK apartments with sizes ranging from 360 to 604 sq.ft., designed to suit a variety of lifestyle needs. Spread across 1.48 acres, the project consists of 254 units housed within 5 buildings. The expected possession date is December 2027. The project includes essential amenities such as a children's play area, swimming pool, fire sprinklers, 24x7 security, and provision for closed car parking, making it suitable for families and individuals alike. It is located on Gurudwara Road, near Giri Raj Nagar in Odhav, offering good connectivity and access to daily conveniences. Shivam Pushpak 2 is registered under RERA with ID PR/GJ/AHMEDABAD/AHMEDABAD CITY/Ahmedabad Municipal Corporatio MN282AA10182/261222, ensuring transparency and regulatory compliance. The location is well-connected to prominent suburbs and surrounded by schools, hospitals, banks, and offices, making it a practical choice for homebuyers looking for affordability without compromising on access to urban infrastructure.
Show More About Project faq-arrow.svg

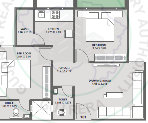
Floor Plan & Pricing

Price on Request info-icon
Shivam Pushpak-2

Explore 3D Interactive Floor Plan

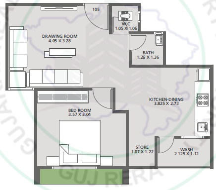
Price on Request info-icon
Shivam Pushpak-2

Explore 3D Interactive Floor Plan

Price on Request info-icon
Shivam Pushpak-2

Explore 3D Interactive Floor Plan

Price on Request info-icon
Shivam Pushpak-2

Explore 3D Interactive Floor Plan

Project Amenities

Swimming Pool Swimming Pool
Closed Car Parking Closed Car Parking
24X7 Water Supply 24X7 Water Supply
Rain Water Harvesting Rain Water Harvesting
24 X 7 Security 24 X 7 Security
Fire Sprinklers Fire Sprinklers

Project Brochure

Explore Neighbourhood - Map View

Send enquiry to Builder

Please share your contact detail.

I am :
Reason to buy :
Send

EMI Calculator

Loan Amount
₹ 1 Lac ₹ 10 Cr
Tenure (Years)
1 Year 30 Year
Interest Rate (% P.A.)
0.5% 15%
Calculate
Result
Monthly Installments (EMI) ₹ 0
Principal Amount ₹ 0
Total Interest ₹ 0
Total Interest Payment ₹ 0