logo
Post Property Free

Province

verify-iconRera

BySangath Pro LLP

map-pinZundal, Gandhinagar

Price on Request

Last updated: February 12, 2026

call-iconContact Builder
Cover Image
Province
Province
+ 4 More

Configurations

3 bhk Bhk Appartment

Possession Starts

December, 2027

Avg. Price

Price on Request

Sizes (Super Buildup Area)

1179 sq.ft

Overview

Project Size

2 Buildings - 14 Floor

Launch Date

August, 2022

Flat area

1179.00 - 1179.00 sq.ft

Rera Id

PR/GJ/GANDHINAGAR/XX... PR/GJ/GANDHINAGAR/GANDHINAGAR/Others/MAA10775/141022

More About Projects

Province is a new mixed-development project by Sangath Pro LLP, located in Zundal, Gandhinagar. The project is registered under GUJRERA Reg. No. PR/GJ/GANDHINAGAR/GANDHINAGAR/Others/MAA10775/141022. Construction commenced on 29 August 2022 and the project is scheduled for completion by 31 December 2027. Designed as a contemporary mixed-use development, Province seamlessly integrates residential and commercial spaces with modern architecture and efficient planning. The project emphasizes quality construction, functional layouts, and essential amenities to support comfortable living as well as business needs. Situated in Zundal, a rapidly developing area of Gandhinagar, the project enjoys good connectivity to major roads and key destinations across Gandhinagar and Ahmedabad. With schools, healthcare facilities, retail outlets, and daily conveniences nearby, Province presents a practical and well-connected opportunity for residents and investors alike.
Show More About Project faq-arrow.svg

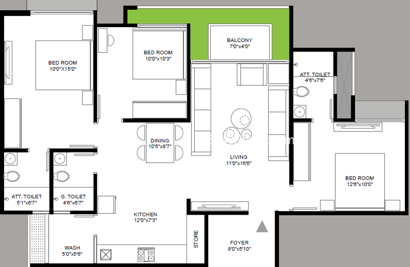
Floor Plan & Pricing

Price on Request info-icon
Province

Explore 3D Interactive Floor Plan

Project Amenities

Indoor Games Indoor Games
Gymnasium Gymnasium
Car Parking Car Parking
Closed Car Parking Closed Car Parking
Jogging Track Jogging Track
Full Power Backup Full Power Backup
24x7 CCTV Surveillance 24x7 CCTV Surveillance
Multipurpose Hall Multipurpose Hall
Party Hall Party Hall
Vastu Compliant Vastu Compliant
Yoga/ Meditation Area Yoga/ Meditation Area

Project Brochure

Explore Neighbourhood - Map View

Send enquiry to Builder

Please share your contact detail.

I am :
Reason to buy :
Send

EMI Calculator

Loan Amount
₹ 1 Lac ₹ 10 Cr
Tenure (Years)
1 Year 30 Year
Interest Rate (% P.A.)
0.5% 15%
Calculate
Result
Monthly Installments (EMI) ₹ 0
Principal Amount ₹ 0
Total Interest ₹ 0
Total Interest Payment ₹ 0
Sangath Pro LLP
Sangath Pro LLP
25 Years Experience
Total Projects 1
Projects Completed 0
Projects Ongoing 1
      
        

Zundal Ratings

      
    
           
3.9/5
Average Rating
(17 Total Reviews)
Likes
Dislikes
      
        

Review By Resident