logo
Post Property Free

Motherland Magnate Luxuria

verify-iconRera

ByMotherland Inframark

map-pinGota, Ahmedabad

₹1.17 Cr

Last updated: January 13, 2026

call-iconContact Builder
Cover Image
Motherland Magnate Luxuria

Configurations

2, 3 Bhk Appartment

Possession Starts

December, 2025

Avg. Price

Price on Request

Sizes (Super Buildup Area)

1764 - 2421 sq.ft

Overview

Project Size

3 Buildings - 9 Floor

Launch Date

November, 2020

Flat area

1764.00 - 2421.00 sq.ft

Rera Id

PR/GJ/AHMEDABAD/XXX PR/GJ/AHMEDABAD/AHMEDABAD CITY/AUDA/MAA08130/010321

More About Projects

Motherland Magnate Luxuria is a residential project by Motherland Inframark, located in Chandkheda, Ahmedabad. This under-construction project spans 0.86 acres and comprises 78 units across 3 buildings, offering well-designed 3 BHK apartments with sizes ranging from 971 sq.ft. to 1334 sq.ft. Designed for modern living, the project offers essential amenities such as power backup, fire safety systems, storm water drains, solid waste management, and water storage. These provisions ensure a safe, convenient, and sustainable lifestyle for its residents. Strategically situated in Gota Jagatpur, the project benefits from excellent road connectivity and proximity to schools, hospitals, shopping centers, and other urban conveniences. Motherland Magnate Luxuria is a RERA-registered project with ID PR/GJ/AHMEDABAD/AHMEDABAD CITY/AUDA/MAA08130/010321, meeting all state regulations. It reflects the developer’s focus on delivering quality homes that promote a healthy and comfortable lifestyle.
Show More About Project faq-arrow.svg

Floor Plan & Pricing

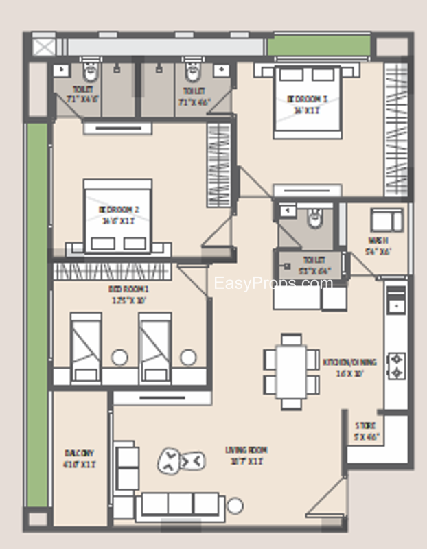
₹85.01 L info-icon
Motherland Magnate Luxuria

Explore 3D Interactive Floor Plan

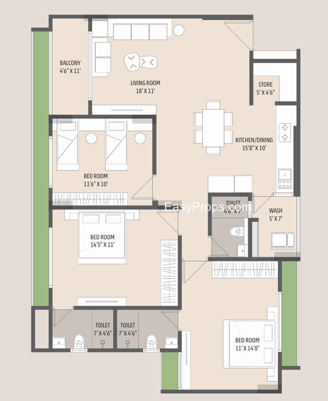
Price on Request info-icon
Motherland Magnate Luxuria

Explore 3D Interactive Floor Plan

Price on Request info-icon
Motherland Magnate Luxuria

Explore 3D Interactive Floor Plan

Price on Request info-icon
Motherland Magnate Luxuria

Explore 3D Interactive Floor Plan

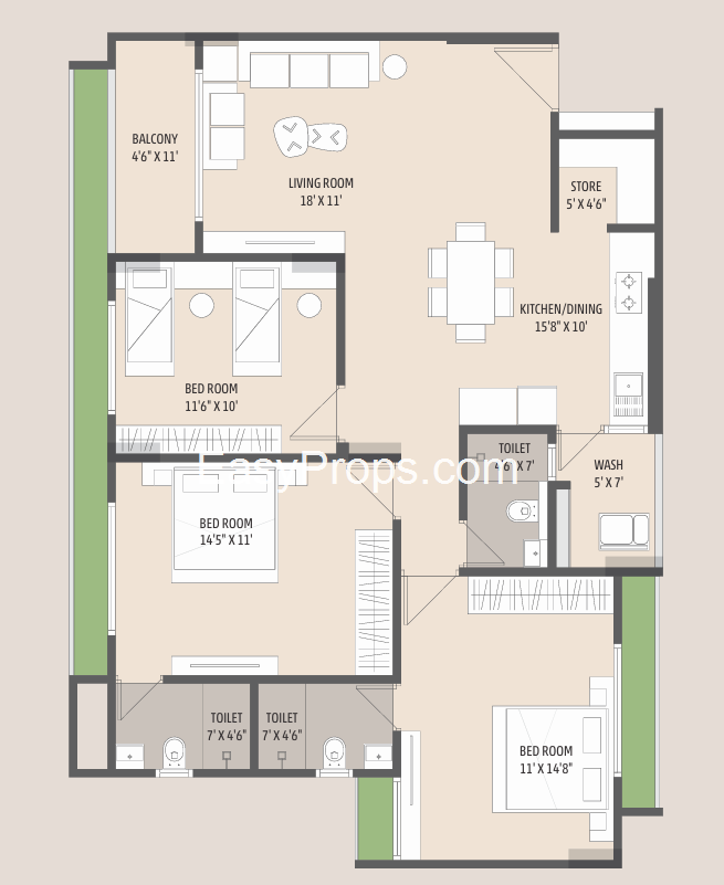
₹1.17 Cr info-icon
Motherland Magnate Luxuria

Explore 3D Interactive Floor Plan

Project Amenities

Car Parking Car Parking
24X7 Water Supply 24X7 Water Supply
Fire Fighting System Fire Fighting System
24 Hours Water Supply 24 Hours Water Supply

Project Specifications

Floor & Counter

Living/Dining

High Quality Vitrified Tiles

Master Bedroom

High Quality Vitrified Tiles

Other Bedroom

High Quality Vitrified Tiles

Kitchen

High Quality Vitrified Tiles

Fitting

Kitchen Area

Granite platform with stainless steel sink

Toilets

CP fittings

Door

Flush Door

Wall & Ceiling

Interior

Putty Finish

Exterior

Textured Paint

Kitchen Space

Ceramic Tiles

Project Brochure

Explore Neighbourhood - Map View

Send enquiry to Builder

Please share your contact detail.

I am :
Reason to buy :
Send

EMI Calculator

Loan Amount
₹ 1 Lac ₹ 10 Cr
Tenure (Years)
1 Year 30 Year
Interest Rate (% P.A.)
0.5% 15%
Calculate
Result
Monthly Installments (EMI) ₹ 0
Principal Amount ₹ 0
Total Interest ₹ 0
Total Interest Payment ₹ 0
Motherland Inframark
Motherland Inframark
25 Years Experience
Total Projects 2
Projects Completed 1
Projects Ongoing 1
      
        

Gota Ratings

      
    
           
3.9/5
Average Rating
(17 Total Reviews)
Likes
Dislikes
      
        

Review By Resident