logo
Post Property Free

Dev Vatika

verify-iconRera

ByDev Corporation Ahmedabad

map-pinKrish Bungalows, Siddhi Road, South East, Lambha, Ahmedabad

Price on Request

Last updated: August 08, 2025

call-iconContact Builder
Cover Image
Dev Vatika
Dev Vatika
+ 4 More

Configurations

4 Bhk Bungalow

Possession Starts

June, 2024

Avg. Price

Price on Request

Sizes (Super Buildup Area)

2403 - 2781 sq.ft

Overview

Project Size

0 Buildings - 0 Floor

Launch Date

February, 2020

Flat area

2403.00 - 2781.00 sq.ft

Rera Id

PR/GJ/AHMEDABAD/XXX PR/GJ/AHMEDABAD/AHMEDABAD CITY/AUDA/RAA07058/280520

More About Projects

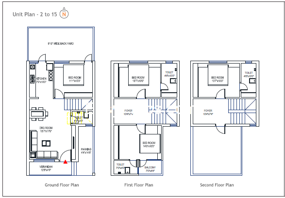
Dev Vatika is a premium residential villa project developed by Dev Corporation, located in Lambha, Ahmedabad. The project covers approximately 1.47 acres and comprises 48 spacious 4 BHK villas with 4 bathrooms. These villas are designed with carpet areas ranging from 1,321 to 1,528 sq.ft., offering ample living space and comfort for families. Launched in February 2020, Dev Vatika was completed and ready for possession by June 2024. It is a RERA-registered project with the registration number PR/GJ/AHMEDABAD/AHMEDABAD CITY/AUDA/RAA07058/280520, ensuring that it meets all legal and regulatory standards. Each villa in Dev Vatika features a three-sided open layout to maximize natural light and cross-ventilation. The homes are built with high-quality materials and come equipped with vitrified tile flooring, granite kitchen platforms with stainless steel sinks, decorative main doors, aluminium-framed glazed windows, concealed copper wiring, and glazed tiles in bathrooms up to lintel level. The entire structure is constructed using RCC framework, making it earthquake-resistant, and terraces are waterproofed for durability. The development offers a host of amenities designed for a comfortable and secure lifestyle. These include 24x7 water supply, power backup, a fully gated community with CCTV surveillance, intercom connectivity, and manned security. Residents also have access to a gymnasium, indoor games room, jogging track, landscaped gardens, a children’s play area, and outdoor sports facilities. Eco-friendly features such as rainwater harvesting, a sewage treatment plant, and fire safety systems are also part of the project. The layout is Vastu-compliant, catering to traditional preferences in home design. Dev Vatika is situated in Lambha, a developing residential locality that has been incorporated into the Ahmedabad Municipal Corporation. The area is well-connected and offers convenient access to schools, hospitals, markets, and public transportation. It is located around 9 to 10 kilometers from key railway stations like Geratpur and Vatva, and approximately 24 to 25 kilometers from Sardar Vallabhbhai Patel International Airport. The villas are competitively priced, starting at around ₹90 lakh and going up to ₹1.15 crore, depending on the unit size and layout. Dev Vatika is an ideal choice for homebuyers seeking independent living in a well-planned, secure, and modern environment.
Show More About Project faq-arrow.svg

Floor Plan & Pricing

Price on Request info-icon
Dev Vatika

Explore 3D Interactive Floor Plan

Price on Request info-icon
Dev Vatika

Explore 3D Interactive Floor Plan

Price on Request info-icon
Dev Vatika

Explore 3D Interactive Floor Plan

Price on Request info-icon
Dev Vatika

Explore 3D Interactive Floor Plan

Price on Request info-icon
Dev Vatika

Explore 3D Interactive Floor Plan

Price on Request info-icon
Dev Vatika

Explore 3D Interactive Floor Plan

Project Amenities

Indoor Games Indoor Games

Project Specifications

Floor & Counter

Living/Dining

High Quality Vitrified Tiles

Master Bedroom

High Quality Vitrified Tiles

Other Bedroom

High Quality Vitrified Tiles

Kitchen

High Quality Vitrified Tiles

Fitting

Kitchen Area

Granite platform with stainless steel sink

Toilets

CP fittings

Door

Flush Door

Wall & Ceiling

Interior

Putty Finish

Exterior

Textured Paint

Kitchen Space

Ceramic Tiles

Project Brochure

Explore Neighbourhood - Map View

Send enquiry to Builder

Please share your contact detail.

I am :
Reason to buy :
Send

EMI Calculator

Loan Amount
₹ 1 Lac ₹ 10 Cr
Tenure (Years)
1 Year 30 Year
Interest Rate (% P.A.)
0.5% 15%
Calculate
Result
Monthly Installments (EMI) ₹ 0
Principal Amount ₹ 0
Total Interest ₹ 0
Total Interest Payment ₹ 0
Dev Corporation Ahmedabad
Dev Corporation Ahmedabad
25 Years Experience
Total Projects 1
Projects Completed 1
Projects Ongoing 0
      
        

Lambha Ratings

      
    
           
3.9/5
Average Rating
(17 Total Reviews)
Likes
Dislikes
      
        

Review By Resident