logo
Post Property Free

Dev Auram Sky

verify-iconRera

ByDev Enterprise Ahmedabad

map-pinGota, Ahmedabad

₹0 L - ₹1.79 Cr ₹0 K /sq.ft

Last updated: June 24, 2025

call-iconContact Builder
Cover Image
Dev Auram Sky
Dev Auram Sky
+ 6 More

Configurations

3, 4 Bhk Appartment

Possession Starts

July, 2024

Avg. Price

₹0 /sq.ft

Sizes (Super Buildup Area)

1872 - 2826 sq.ft

Overview

Project Size

1 Buildings - 14 Floor

Launch Date

July, 2021

Flat area

1872.00 - 2826.00 sq.ft

Rera Id

PR/GJ/AHMEDABAD/XXX PR/GJ/AHMEDABAD/AHMEDABAD CITY/AUDA/RAA09002/070921

More About Projects

Dev Auram Sky by Dev Enterprise is an under-construction residential project located in Gota, Ahmedabad. Spread over 0.46 acres, the project offers well-designed 3 BHK and 4 BHK apartments, with unit sizes starting from 1030 sq. ft. It comprises a single tower with a total of 54 units and is registered under RERA ID: PR/GJ/AHMEDABAD/AHMEDABAD CITY/AUDA/RAA09002/070921. Key amenities include a gymnasium, power backup, 24x7 security, fire sprinklers, and landscaped gardens. The project is designed to offer a comfortable lifestyle with essential facilities every homeowner looks for. Strategically located at Survey No. 89/2, FP 248, Chenpur, Gota, the property enjoys excellent connectivity to major roads, shopping malls, schools, hospitals, and entertainment options. For more details, visit our website: [EasyProps.com]
Show More About Project faq-arrow.svg

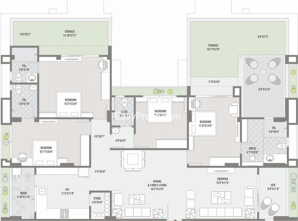
Floor Plan & Pricing

₹0 L info-icon
Dev Auram Sky

Explore 3D Interactive Floor Plan

₹1.79 Cr info-icon
Dev Auram Sky

Explore 3D Interactive Floor Plan

Project Amenities

Gymnasium Gymnasium
24X7 Water Supply 24X7 Water Supply
24 X 7 Security 24 X 7 Security
Full Power Backup Full Power Backup
Fire Sprinklers Fire Sprinklers

Project Specifications

Floor & Counter

Living/Dining

High Quality Vitrified Tiles

Master Bedroom

High Quality Vitrified Tiles

Other Bedroom

High Quality Vitrified Tiles

Kitchen

High Quality Vitrified Tiles

Fitting

Kitchen Area

Granite platform with stainless steel sink

Toilets

CP fittings

Door

Flush Door

Wall & Ceiling

Interior

Putty Finish

Exterior

Textured Paint

Kitchen Space

Ceramic Tiles

Project Brochure

Explore Neighbourhood - Map View

Send enquiry to Builder

Please share your contact detail.

I am :
Reason to buy :
Send

EMI Calculator

Loan Amount
₹ 1 Lac ₹ 10 Cr
Tenure (Years)
1 Year 30 Year
Interest Rate (% P.A.)
0.5% 15%
Calculate
Result
Monthly Installments (EMI) ₹ 0
Principal Amount ₹ 0
Total Interest ₹ 0
Total Interest Payment ₹ 0