logo
Post Property Free

Aryan Elegance

verify-iconRera

ByAkshar Infra

map-pinPaldi, Ahmedabad

₹1.03 Cr - ₹1.29 Cr ₹5.84 K /sq.ft

Last updated: October 09, 2025

call-iconContact Builder
Cover Image
Aryan Elegance
Aryan Elegance
+ 3 More

Configurations

3 Bhk Appartment

Possession Starts

March, 2028

Avg. Price

₹5.84 K /sq.ft

Sizes (Super Buildup Area)

1764 - 2205 sq.ft

Overview

Project Size

1 Buildings - 14 Floor

Launch Date

April, 2023

Flat area

1764.00 - 2205.00 sq.ft

More About Projects

Aryan Elegance is a premium residential project by Aaryan Group, located in the well-established locality of Paldi, Ahmedabad. Launched in April 2023, the project is currently under construction and is expected to be ready for possession by March 2028. It is spread over 1.71 acres and comprises five towers with a total of 318 units, offering spacious 3 BHK apartments. The apartment sizes range from approximately 1,764 to 2,205 square feet, designed to suit the needs of modern families. The project is registered under RERA and follows all regulatory guidelines, providing assurance of quality and transparency. Apartments are priced between ₹1.03 crore and ₹1.28 crore. Each unit is thoughtfully designed with features such as balconies opening in three directions, and many flats offer garden or road-facing views. A Jain Derasar is also included within the premises, adding spiritual and cultural value to the community. Residents will enjoy over 50 amenities, including a gymnasium, indoor games, meditation and yoga areas, a terrace garden, a mini-theatre, a party lawn, and a multipurpose room. For convenience and safety, the project provides 24x7 water supply, fire safety systems, CCTV surveillance, a gated entry, and power backup. Each unit includes two reserved parking spaces, and visitor parking is also available. A cricket pitch and dedicated children’s play areas enhance the recreational experience. Located near the Chandranagar BRTS Bus Stop on PT College Road, Aryan Elegance enjoys excellent road connectivity and access to daily conveniences such as schools, hospitals, shopping centers, and the riverfront. The surrounding neighborhood is peaceful, secure, and well-connected, making it an ideal location for families looking for both comfort and accessibility.
Show More About Project faq-arrow.svg

Floor Plan & Pricing

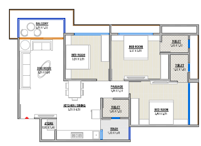
₹1.03 Cr info-icon
Aryan Elegance
plus-icon minus-icon

Explore 3D Interactive Floor Plan

₹1.29 Cr info-icon
Aryan Elegance
plus-icon minus-icon

Explore 3D Interactive Floor Plan

Project Amenities

Banquet Hall Banquet Hall
Gymnasium Gymnasium
Closed Car Parking Closed Car Parking
24X7 Water Supply 24X7 Water Supply
Rain Water Harvesting Rain Water Harvesting
24 X 7 Security 24 X 7 Security
Fire Fighting System Fire Fighting System
Gazebo Gazebo
Yoga/Meditation Area Yoga/Meditation Area
Senior Citizen Sitout Senior Citizen Sitout
Visitor Parking Visitor Parking
Full Power Backup Full Power Backup
Fire Sprinklers Fire Sprinklers
Vaastu Compliant Vaastu Compliant
Security Cabin Security Cabin
Reserved Parking Reserved Parking

Project Brochure

Explore Neighbourhood - Map View

Send enquiry to Builder

Please share your contact detail.

I am :
Reason to buy :
Send

EMI Calculator

Loan Amount
₹ 1 Lac ₹ 10 Cr
Tenure (Years)
1 Year 30 Year
Interest Rate (% P.A.)
0.5% 15%
Calculate
Result
Monthly Installments (EMI) ₹ 0
Principal Amount ₹ 0
Total Interest ₹ 0
Total Interest Payment ₹ 0